Udine / Beivars / Via Parma
Udine via Parma , tranquilla zona residenziale , a due passi da tutti i servizi , prossima realizzazione di villa singola e villa bifamiliare disposte su piano unico . Certificate CASA CLIMA CLASSE A.
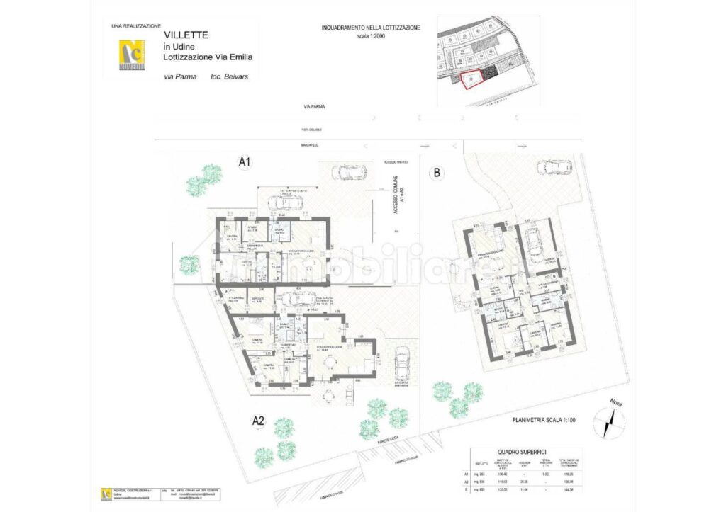
VILLA SINGOLA “C” : ingresso-soggiorno-cucina ,disimpegno, tre camere da letto , due bagni ,studio , autorimessa ,vano tecnico-lavanderia ,posti auto scoperti e ampio giardino.
VILLA BIFAMILIARE “B” : ingresso-soggiorno-cucina , disimpegno, tre camere da letto, due bagni , posto auto coperto, deposito, vano tecnico , posti auto scoperti e ampio giardino.
VILLA BIFAMILIARE “A” : ingresso-soggiorno cucina , disimpegno ,due camere da letto, due bagni, studio, vano tecnico , posto auto coperto ,posti auto scoperti e ampio giardino.
Caratteristiche:
- Contratto: Vendita
- Unità: 3 abitative
- Data inizio e fine lavor: i01/09/2025 – 31/07/2026
- Piani edificio: 1
- Box, posti auto:1 in box privato/box in garage, 2 in parcheggio/garage comune
- Riscaldamento: Autonomo, a pavimento, alimentato a pompa di calore
- Climatizzazione: Autonomo, freddo/caldo
Dotazioni:
- riscaldamento e raffrescamento a pavimento
- ompa di calore Vaillant
- sanitari sospesi
- ventilazione meccanica controllata Zhender
- serramenti triplo vetro completi di anta/ribalta e zanzariere
- avvolgibili in alluminio coimbentati e motorizzati
- predisposizione impianto di allarme volumetrico, perimetrale e videosorveglianza
- impianto fotovoltaico
- isolamento del sottotetto in fiocchi di fibra di vetro
- cappotto in grafite Baumit da 16 cm
- cancello motorizzato
- pavimentazione esterna in pietra piasentina
Prezzo:
Prezzo su richiesta
